RISTORANTE SAVE’
RESTAURANT DESIGN
PROGETTO RISTORAZIONE
RISTORANTE SAVE’
RESTAURANT DESIGN
Il progetto architettonico e d’interni di Savè nasce da un’idea che mi balenava in mente: rendere unico uno spazio ispirato alla farina e al modo di trasportarla e conservarla. Da questa idea ne son scaturite altre , a catena. L’idea di famiglia per esempio, il modo di mangiare un piatto in casa in maniera informale, l’idea di dispensa dove riponi gli ingredienti selezionati con il cuore. Ecco che nasce il concept che ha guidato la progettazione stilistica di questo luogo.
Ma, c’è sempre un ma. La situazione dello stato di fatto, era molto complicata.
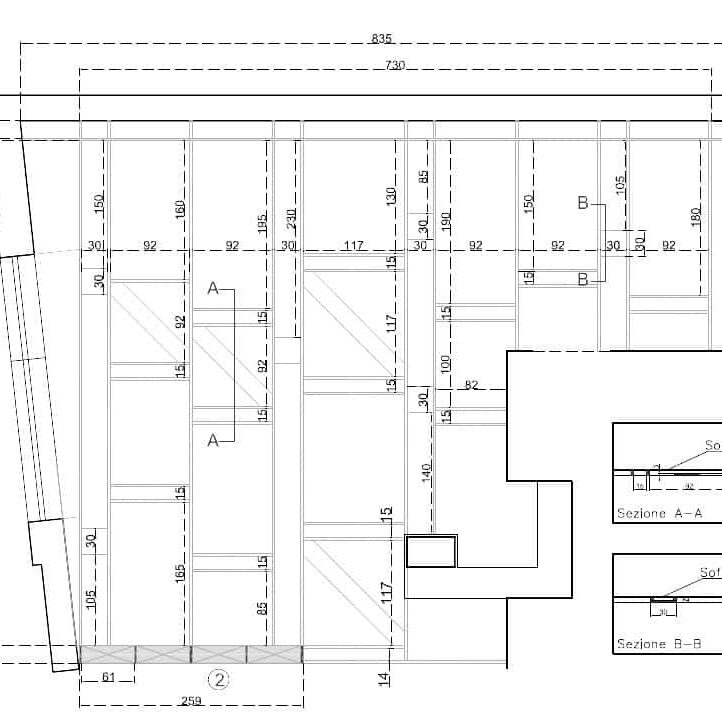
107 mq da pensare alla perfezione perchè ogni tassello doveva incastrarsi.
Lo spazio è stato recuperato e da garage l’abbiamo fatto diventare una pizzeria dotata di 40 posti a sedere, un banco bar e pizzeria, una cucina con servizi e il gruppo servizi igienici. Ebbene si, si può fare.
Come? Progettando l’80% su misura.
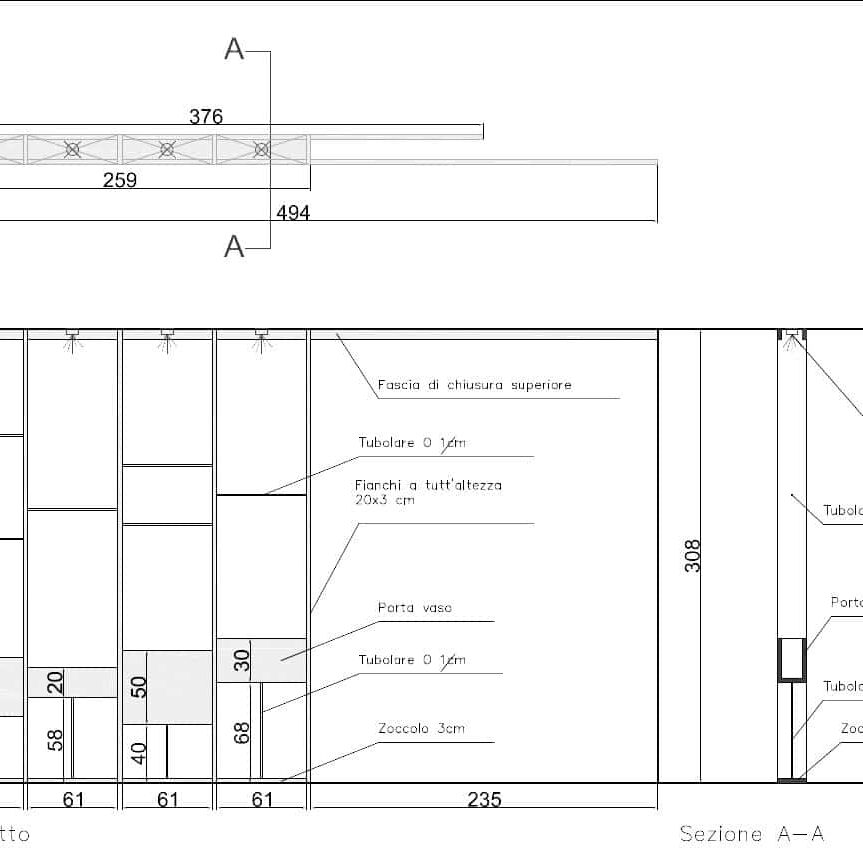
Il soffitto è stato creato e ideato per conferire più profondità all’ambiente e quindi con questa strategia, le linee del soffitto che si congiungono alla parete dispensa dei prodotti, creano l’illusione che lo spazio sia più profondo.
La palette colori contiene il terracotta, colore di tendenza ma che ricorda anche la salsa di pomodoro. Il bianco caldo, declinato su più superfici, come i legni e le murature, ha lo scopo di rendere l’ambiente luminoso.
L’illuminazione è stata studiata a tavolino ottenendo più scenari di luce: il primo che copre la prima fascia serale ed è più luminoso, il secondo che copre la seconda metà del servizio, più soft.
Il materiale d’accento è il rame, presente su sospensioni personalizzate Masterchef, basi tavoli e maniglie.
Il materiale più importante del progetto è il legno d’abete spazzolato che diventa dispensa, diventa bancone pizzeria e bar.




























